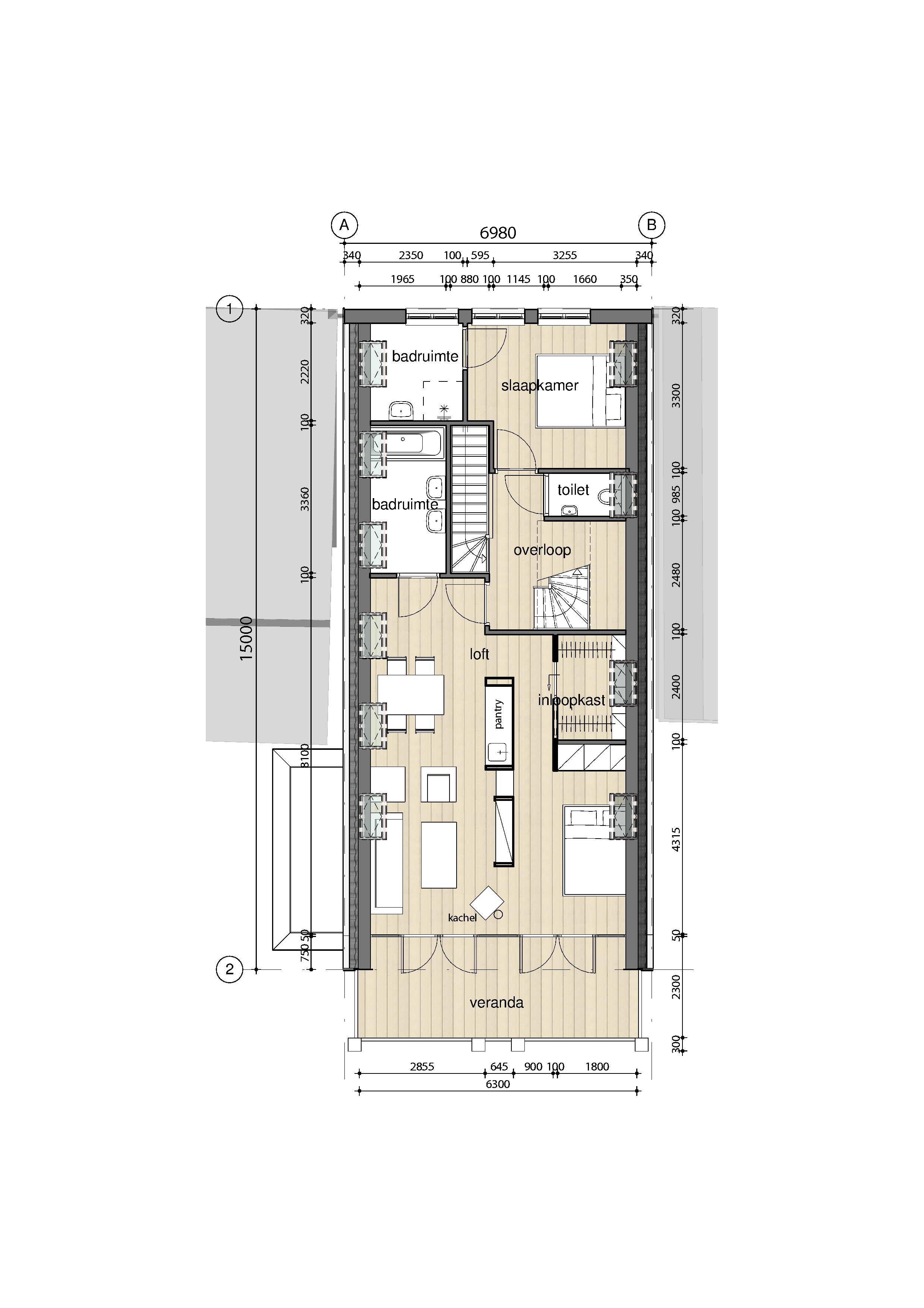
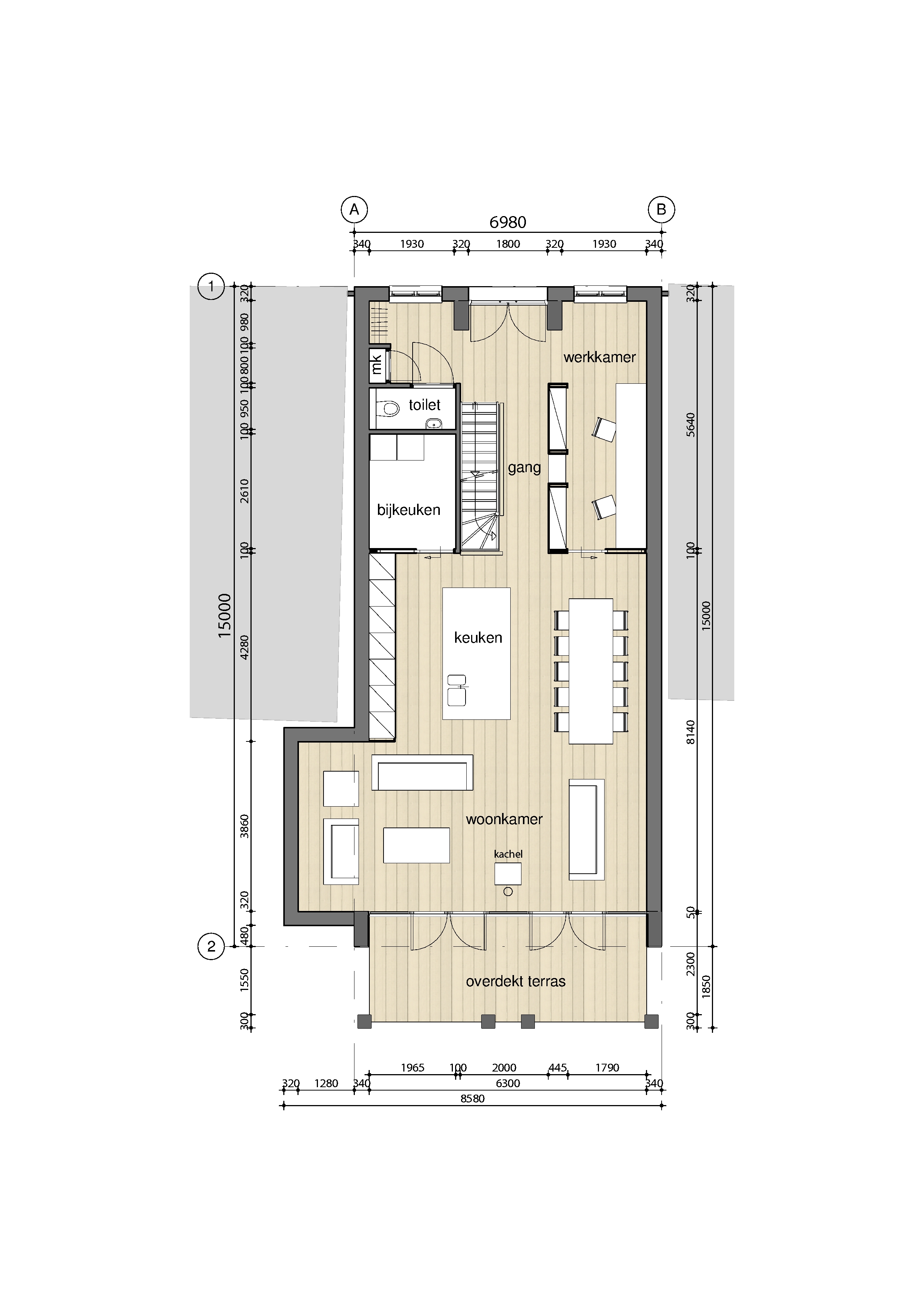
WOONHUIS ROOTSELAAR

In opdracht van Harry en Manja van Rootselaar hebben wij een ontwerp vervaardigd voor hun nieuw te bouwen woonhuis in Vlieland. De voorgevel aan de Dorpsstraat is vormgegeven als een eilanderhuis passend binnen het beschermd dorpsgezicht van Vlieland. De gevel van het woonhuis aan de Waddenzee is daarentegen zo transparant mogelijk gehouden om de locatie op Vlieland optimaal te kunnen ervaren. Duurzame,  cradle to cradle, materialen en de toepassing van zeer duurzame installaties, zoals zonne-energie en warmteopslag vormen de basis voor het woonhuis.
 
Plaats: Vlieland
Opdrachtgever: familie van Rootselaar